Rural New Build Family Home
This project was for an extensive new build home overlooking the fields and hills of rural Stirlingshire.
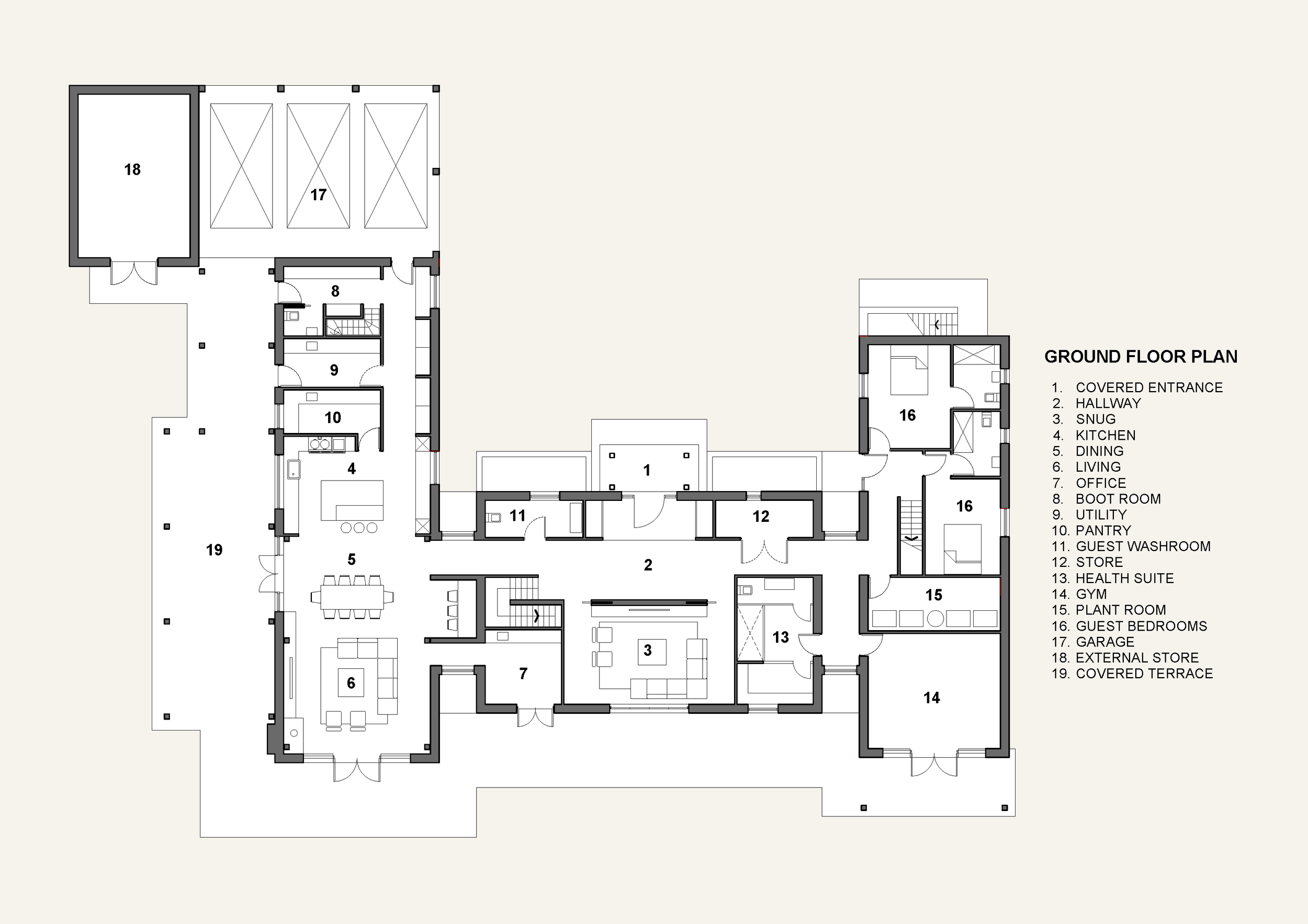
The brief was for a collection of buildings traditional in nature and sympathetic to the rural location with a stone farmhouse as the centrepiece surrounded by a collection of barns and outbuildings.
A variety of natural materials, stone, slate, timber, black and cor ten steel were used to individualise each of the elements giving the project the feel of having evolved over time like many of the surrounding farms.
Project Status - Complete
If you’re considering a project in Stirling or central Scotland,
a short initial conversation is often the best place to start.
The rear of the property faces south with long, uninterrupted views across the adjacent farmland.
The main living spaces are orientated to take advantage of the views and sunlight with the single storey black clad barn in the foreground housing the main kitchen, dining and living spaces
A covered outdoor area sits adjacent to the main living space between the new house and a tree belt to the west ensuring protection from the south westerly winds which often blow down the valley.
Despite the rural appearance, the home takes advantage of modern technology to provide a low energy, sustainable modern building with twin air source heat pumps providing hot water and underfloor heating and a mechanical extract and heat recovery system ensuring heat loss is minimal and running costs are low.
The photos below provide a feel for the interior spaces and illustrate the long views over the fields to the south.
The internal spaces have a sympathetic material palette of stone, timber and dark painted steel providing warm natural finishes and giving the interior a distinctive personality which the clients desired.
Building Floor Plans

